

Casa Contenta
Casa Contenta
Casa Contenta
Private Client
Private Client
Client
Client
Architecture, Interior Design, Branding, FF&E
Architecture, Interior Design, Branding, FF&E
Services
Services
Built
Built
Status
Status
AIE
AIE
Built
Construction
Construction
Depth Lens
Depth Lens
Built
Photography
Photography
2023
2023
Year
Year
Welcome to the Jungle! Casa Contenta, nestled in the stunning landscape of Islita, Guanacaste, Costa Rica, epitomizes a harmonious blend of contemporary architecture and the natural beauty of its surroundings. This residential project is designed to provide a tranquil oasis, fostering a deep connection between indoor living spaces and the lush environment. With a focus on comfort, functionality, and aesthetic appeal, Casa Contenta is an exemplary model of modern tropical living.
Welcome to the Jungle! Casa Contenta, nestled in the stunning landscape of Islita, Guanacaste, Costa Rica, epitomizes a harmonious blend of contemporary architecture and the natural beauty of its surroundings. This residential project is designed to provide a tranquil oasis, fostering a deep connection between indoor living spaces and the lush environment. With a focus on comfort, functionality, and aesthetic appeal, Casa Contenta is an exemplary model of modern tropical living.
“A significant adaptive renovation… reworking its geometry through symmetry and elevating the routes inside into a quiet ritual.”
Wallpaper
Wallpaper








The exterior of Casa Contenta exudes elegance, with smooth stucco walls and natural stone accents, creating a timeless yet contemporary feel. The entrance is framed by large arches, which not only provide visual appeal but also symbolize openness and hospitality. This architectural feature enhances the home’s welcoming atmosphere, inviting visitors to step into a space that feels both expansive and intimate. The arches allow natural light to flood the interior, creating a seamless transition between the outdoors and indoors. The home’s landscaping has been thoughtfully designed to complement the architecture and embrace the surrounding nature. Native plants and lush greenery surround the property, offering privacy while integrating the house into its tropical environment. Pathways through the garden lead to various outdoor spaces, encouraging residents to engage with the landscape and enjoy the beauty of the natural world.
The exterior of Casa Contenta exudes elegance, with smooth stucco walls and natural stone accents, creating a timeless yet contemporary feel. The entrance is framed by large arches, which not only provide visual appeal but also symbolize openness and hospitality. This architectural feature enhances the home’s welcoming atmosphere, inviting visitors to step into a space that feels both expansive and intimate. The arches allow natural light to flood the interior, creating a seamless transition between the outdoors and indoors. The home’s landscaping has been thoughtfully designed to complement the architecture and embrace the surrounding nature. Native plants and lush greenery surround the property, offering privacy while integrating the house into its tropical environment. Pathways through the garden lead to various outdoor spaces, encouraging residents to engage with the landscape and enjoy the beauty of the natural world.


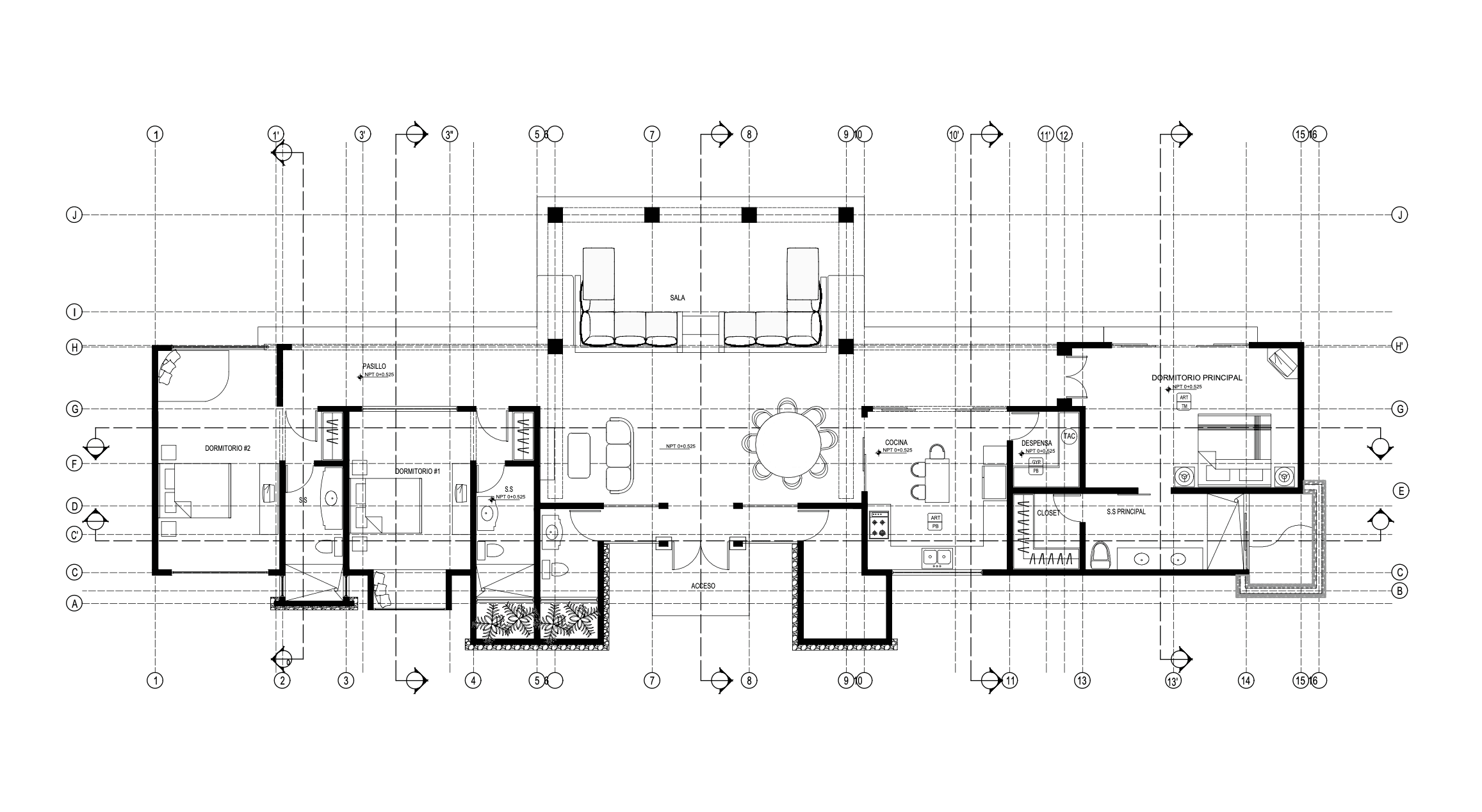
Inside, Casa Contenta’s open-plan design promotes a sense of flow between spaces. The interiors are characterized by neutral tones and natural materials, such as wood and stone, that evoke a sense of calm and serenity. Large windows and sliding doors frame breathtaking views of the ocean and surrounding hills, allowing nature to become an integral part of the living experience. The living areas, kitchen, and dining spaces are designed for both comfort and social interaction, with seamless connections to the outdoor spaces.
The exterior of Casa Contenta exudes elegance, with smooth stucco walls and natural stone accents, creating a timeless yet contemporary feel. The entrance is framed by large arches, which not only provide visual appeal but also symbolize openness and hospitality. This architectural feature enhances the home’s welcoming atmosphere, inviting visitors to step into a space that feels both expansive and intimate. The arches allow natural light to flood the interior, creating a seamless transition between the outdoors and indoors. The home’s landscaping has been thoughtfully designed to complement the architecture and embrace the surrounding nature. Native plants and lush greenery surround the property, offering privacy while integrating the house into its tropical environment. Pathways through the garden lead to various outdoor spaces, encouraging residents to engage with the landscape and enjoy the beauty of the natural world.










A standout feature of the property is the stunning white infinite checker pool, which acts as a centerpiece for outdoor living. Its infinity edge blends beautifully with the horizon, offering unobstructed views of the ocean and hills. The checkerboard pattern adds a modern flair, elevating the space with a sense of playfulness and style. The pool area is complemented by shaded seating and dining areas, creating a perfect environment for relaxation and entertainment. Casa Contenta is a brilliant fusion of contemporary design and traditional elements, carefully crafted to maximize the beauty of its location. The thoughtful use of space, natural materials, and a deep connection to the environment make this home a perfect example of modern Costa Rican architecture, where style, comfort, and nature coexist harmoniously.
The exterior of Casa Contenta exudes elegance, with smooth stucco walls and natural stone accents, creating a timeless yet contemporary feel. The entrance is framed by large arches, which not only provide visual appeal but also symbolize openness and hospitality. This architectural feature enhances the home’s welcoming atmosphere, inviting visitors to step into a space that feels both expansive and intimate. The arches allow natural light to flood the interior, creating a seamless transition between the outdoors and indoors. The home’s landscaping has been thoughtfully designed to complement the architecture and embrace the surrounding nature. Native plants and lush greenery surround the property, offering privacy while integrating the house into its tropical environment. Pathways through the garden lead to various outdoor spaces, encouraging residents to engage with the landscape and enjoy the beauty of the natural world.














































































































































