

Saúl Zona 14
Saúl Zona 14
Saúl Zona 14
Saúl GT
Saúl GT
Client
Client
Architecture, Interior Design, Art Direction, FF&E
Architecture, Interior Design, Art Direction, FF&E
Services
Services
Built
Built
Status
Status
2021
2021
Year
Year
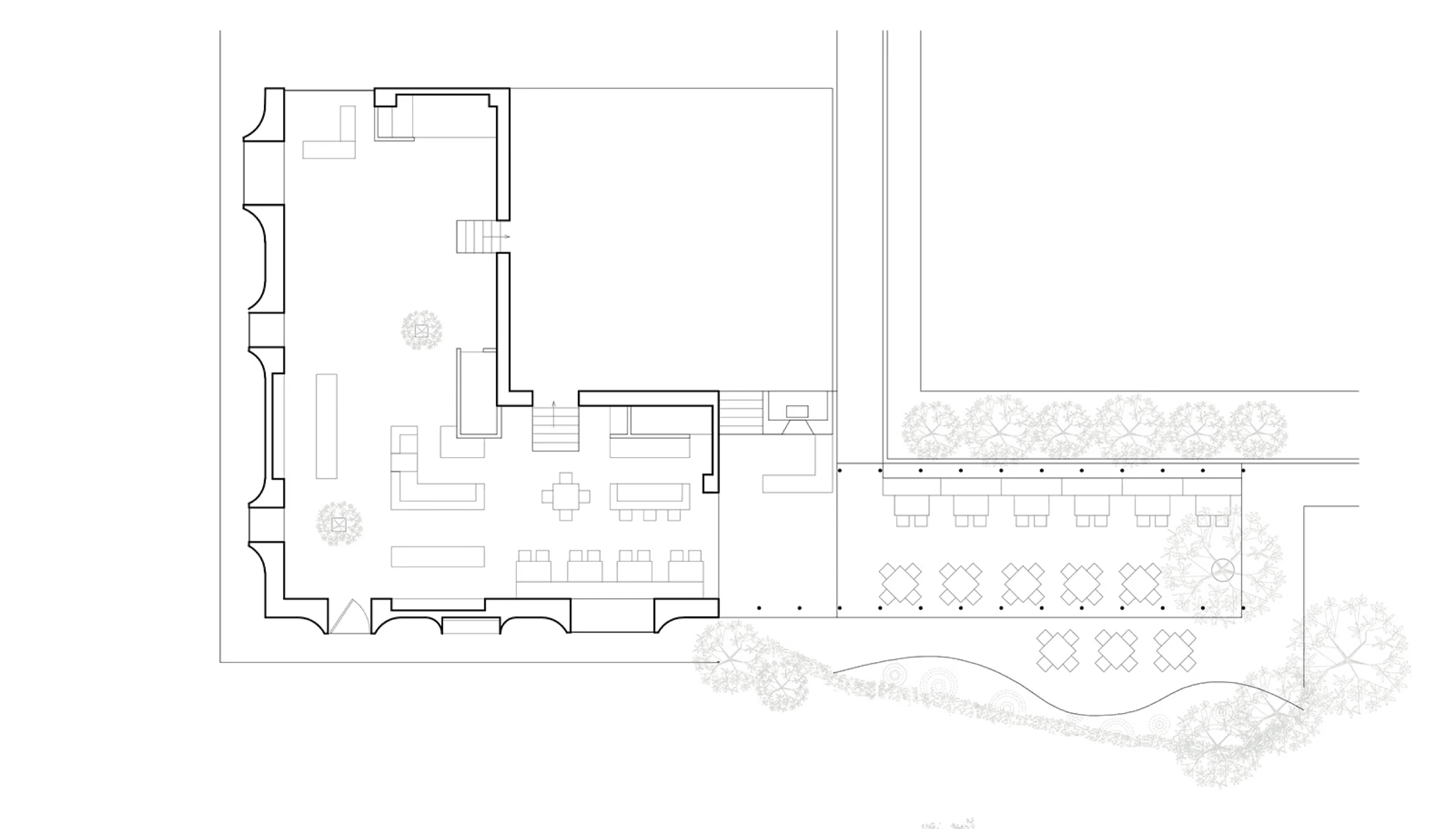
"Saul '14" is a house with many charms. Under one roof, we combine fashion, design, art, objects and food. Here, a union of culture and commerce full of surprises and small treasures entices clients and visitors to take the time to enjoy diverse experiences. It is a place to meet, to stop for a drink at the café, to shop at the store or to visit the terrace to have a long meal or just sit to read. The design's playful qualities draw from cultural references.
"Saul '14" is a house with many charms. Under one roof, we combine fashion, design, art, objects and food. Here, a union of culture and commerce full of surprises and small treasures entices clients and visitors to take the time to enjoy diverse experiences. It is a place to meet, to stop for a drink at the café, to shop at the store or to visit the terrace to have a long meal or just sit to read. The design's playful qualities draw from cultural references.
“Ten of the World’s Coolest Restaurant Interiors”
The Guardian
The Guardian








The buildings facade takes inspiration from the thickly built wall of colonial homes, with deep widow openings and the artistic expression of the molded fenestration. The are 'turned inside-out' to give the exterior a plastic quality and create windows for display The terrace features 1000 pounds of colorful threads which are typical in the dress of the indigenous peoples descended from Mayans. The hanging method is similar to a stage in their drying process after dyeing. The colorful canopy also doubles as a sunshade.
The buildings facade takes inspiration from the thickly built wall of colonial homes, with deep widow openings and the artistic expression of the molded fenestration. The are 'turned inside-out' to give the exterior a plastic quality and create windows for display The terrace features 1000 pounds of colorful threads which are typical in the dress of the indigenous peoples descended from Mayans. The hanging method is similar to a stage in their drying process after dyeing. The colorful canopy also doubles as a sunshade.








































